Gordan Wilson Flats

2020

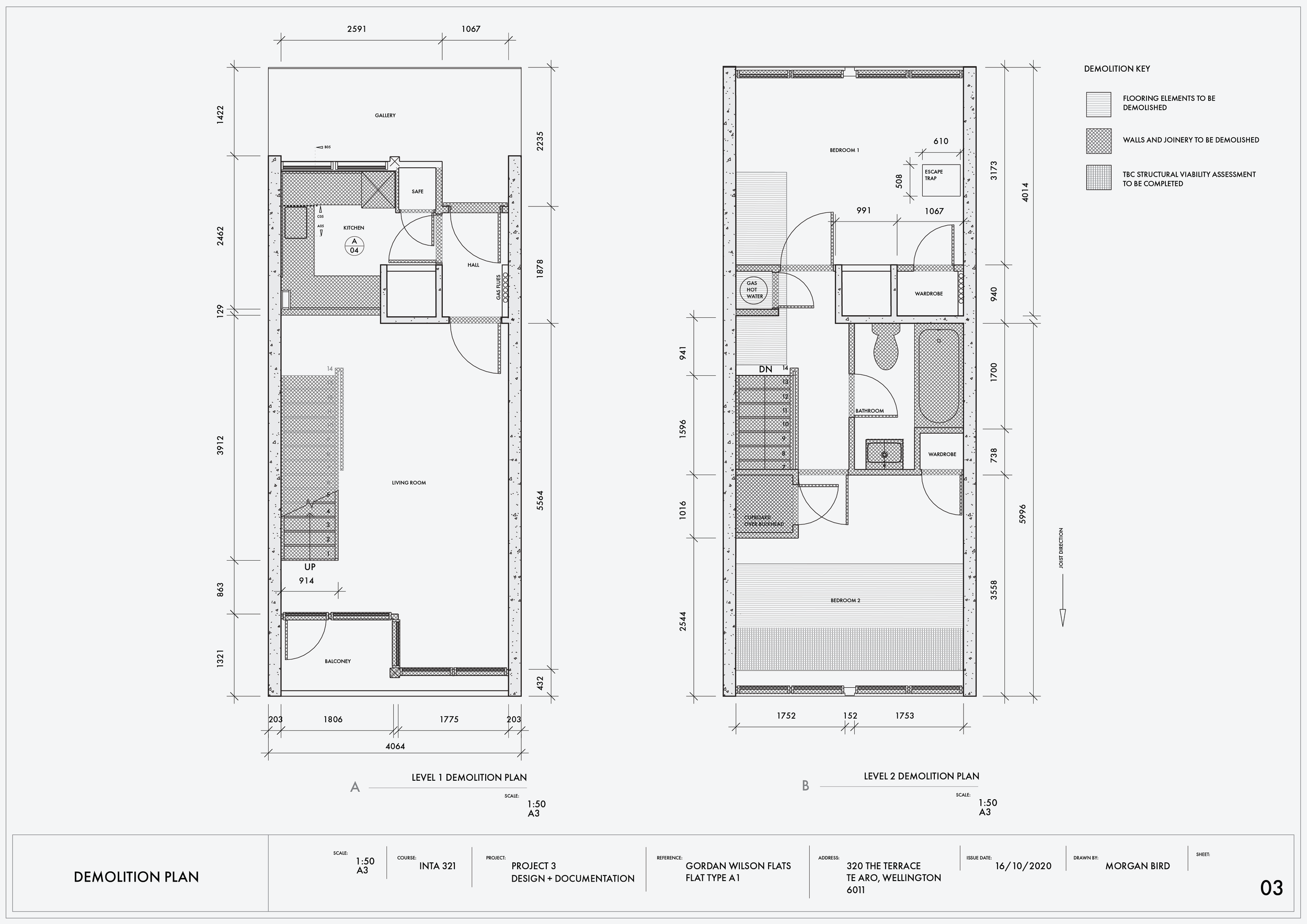
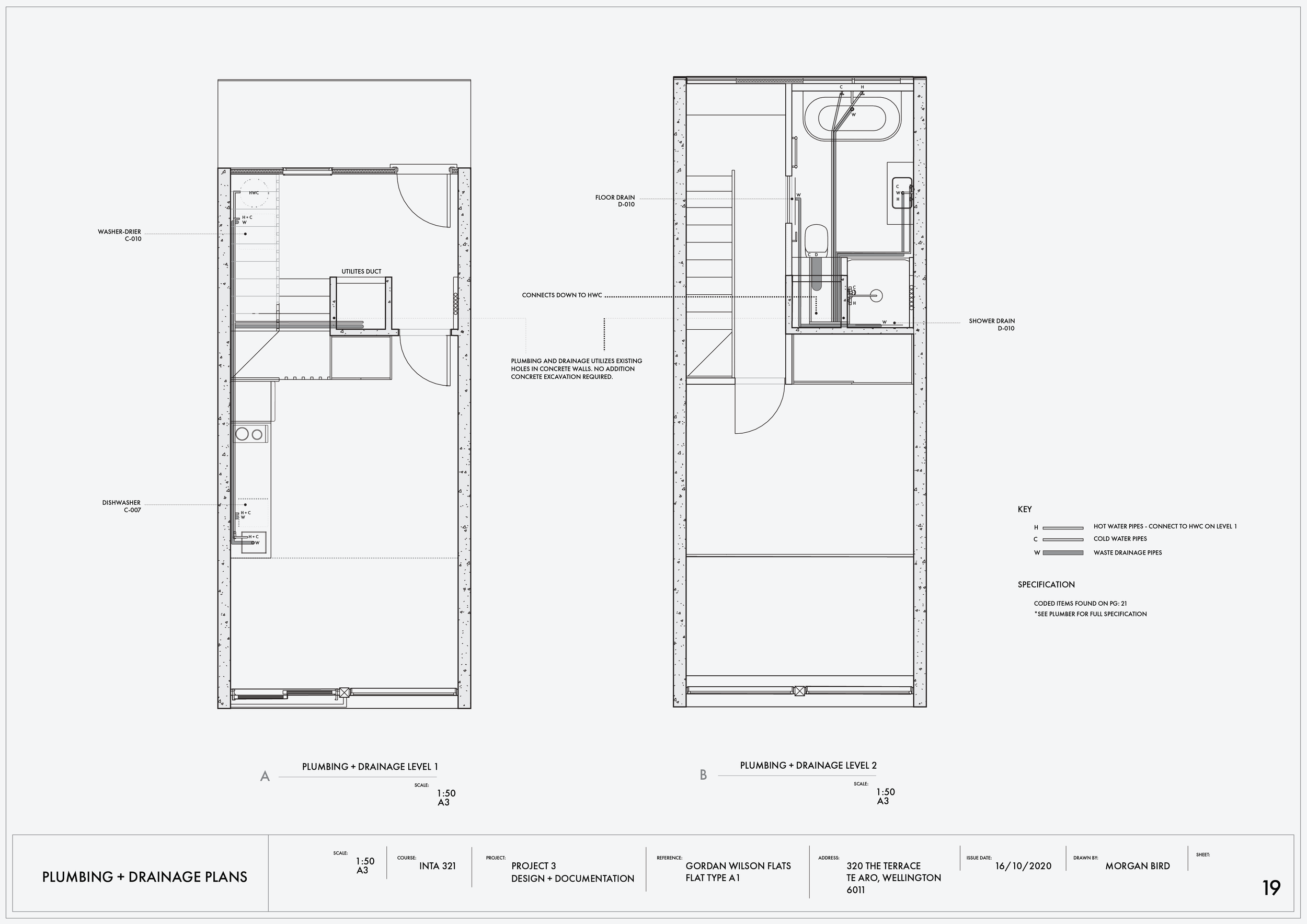
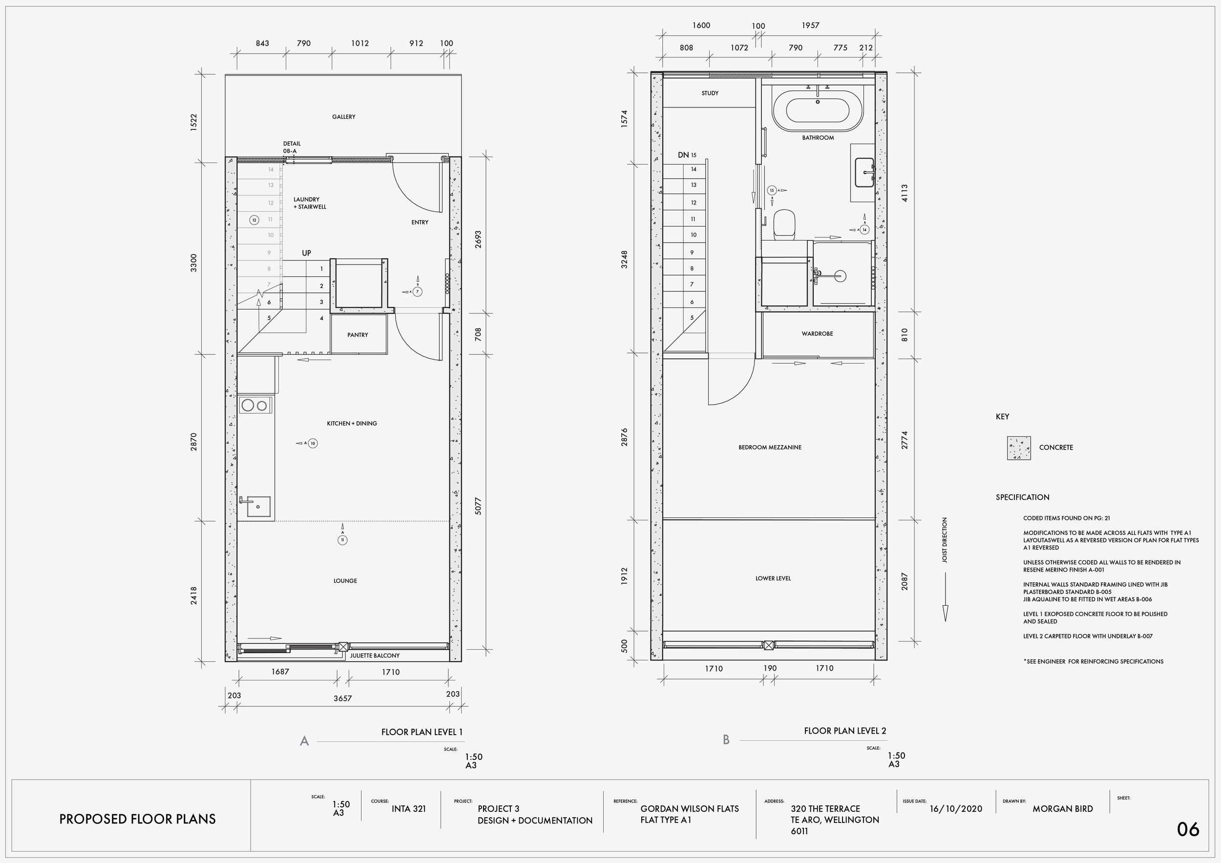
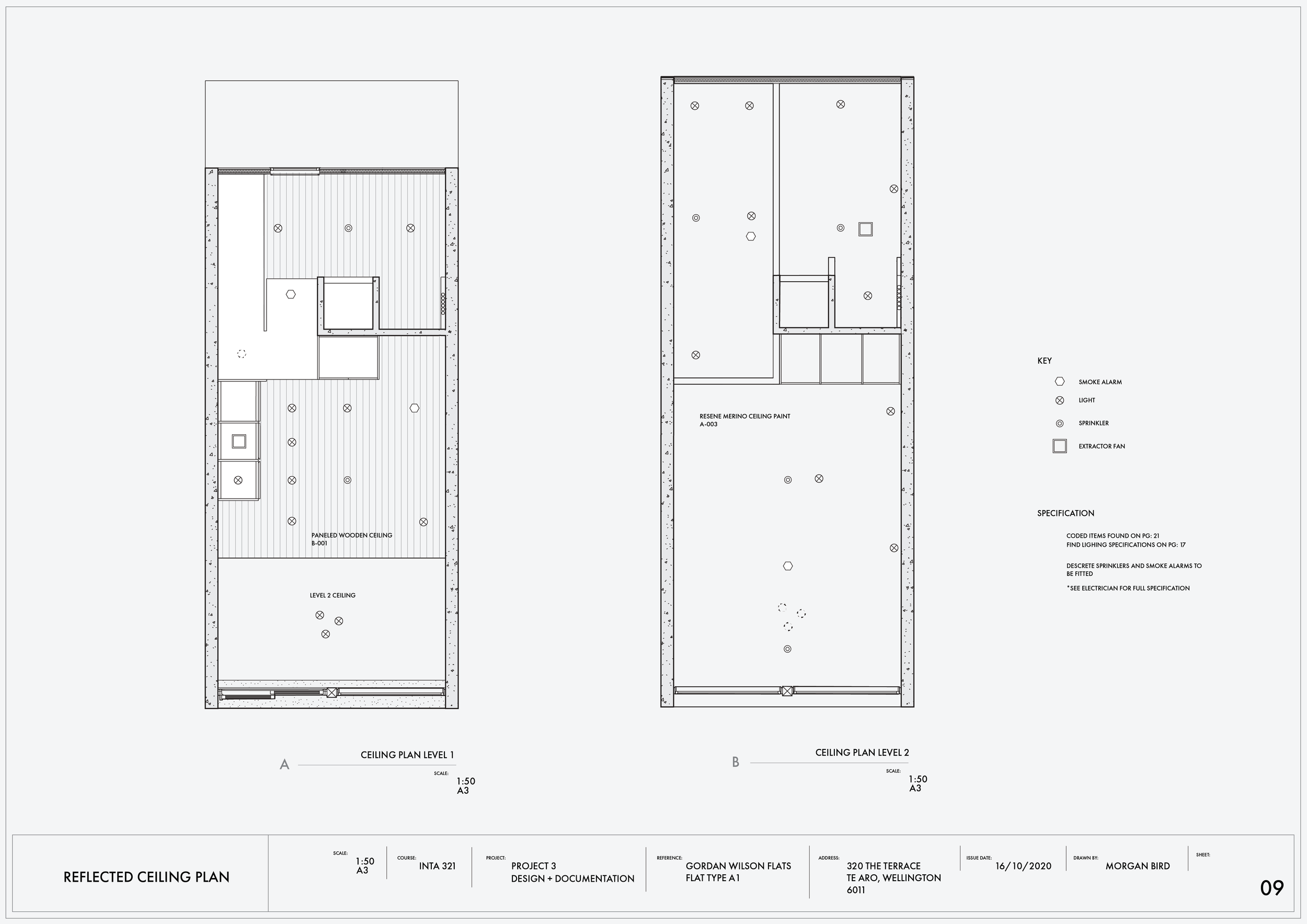
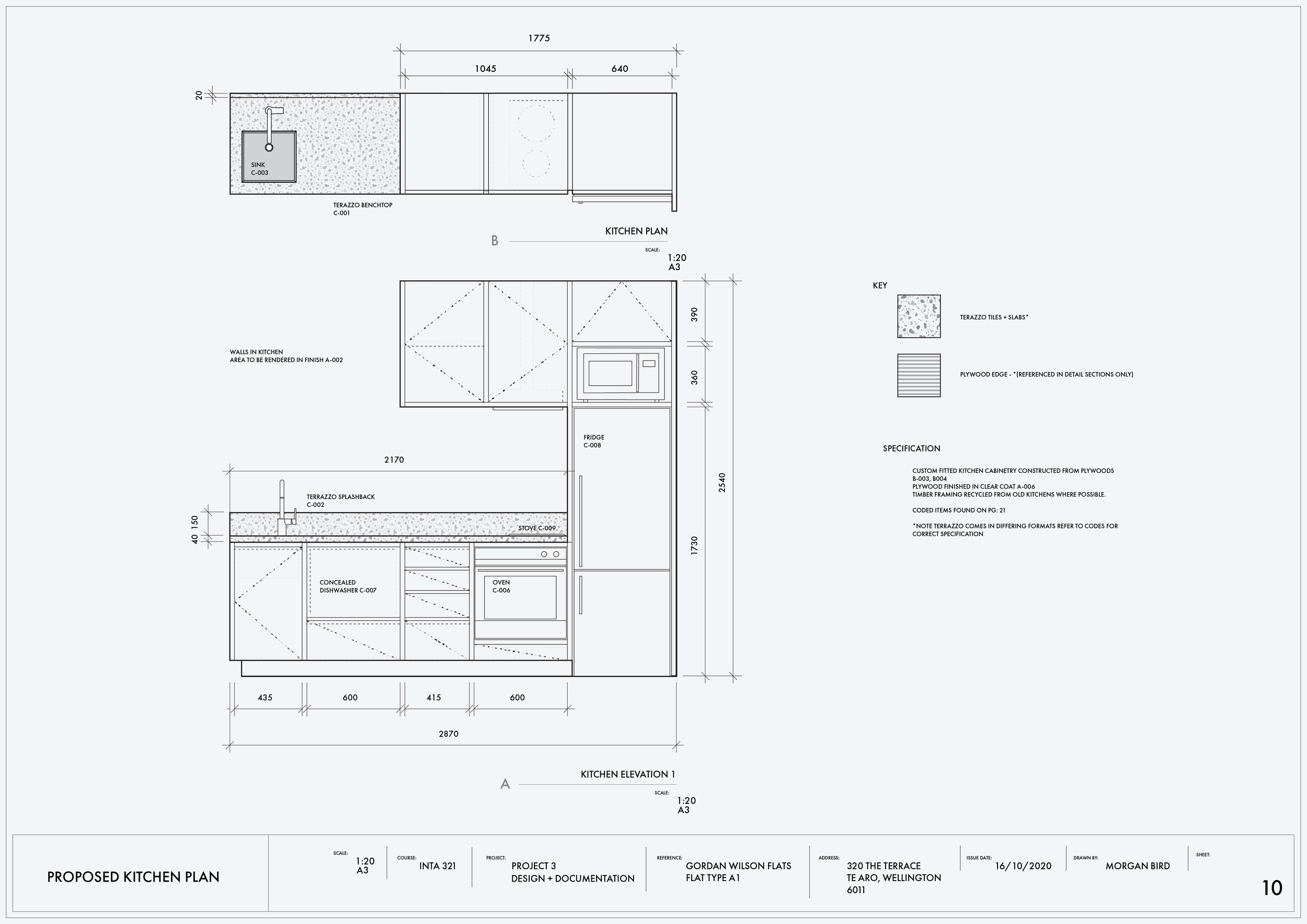
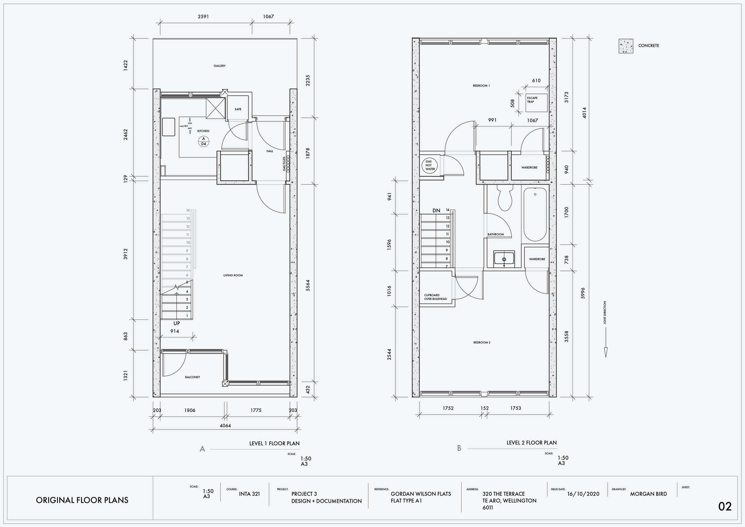
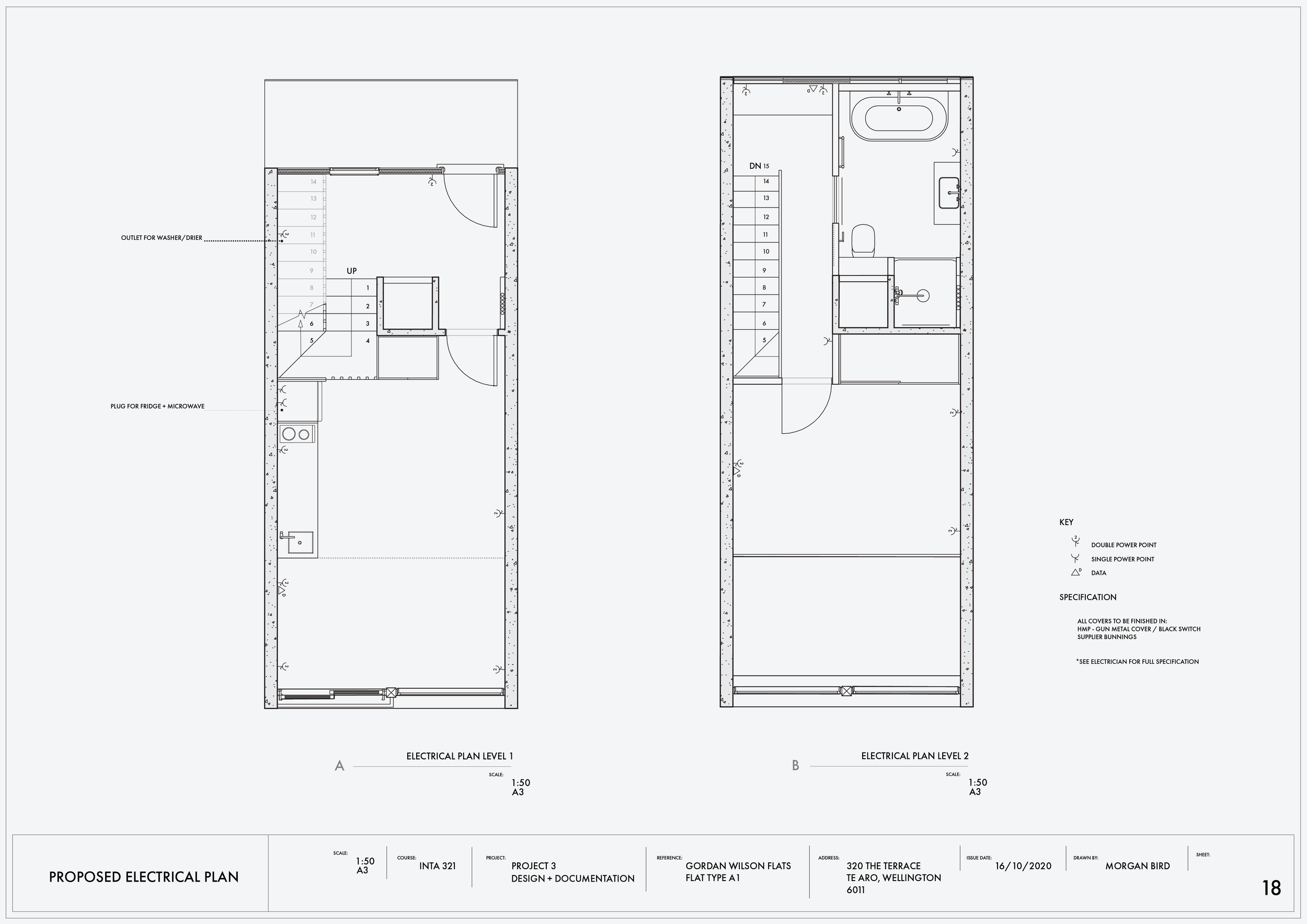
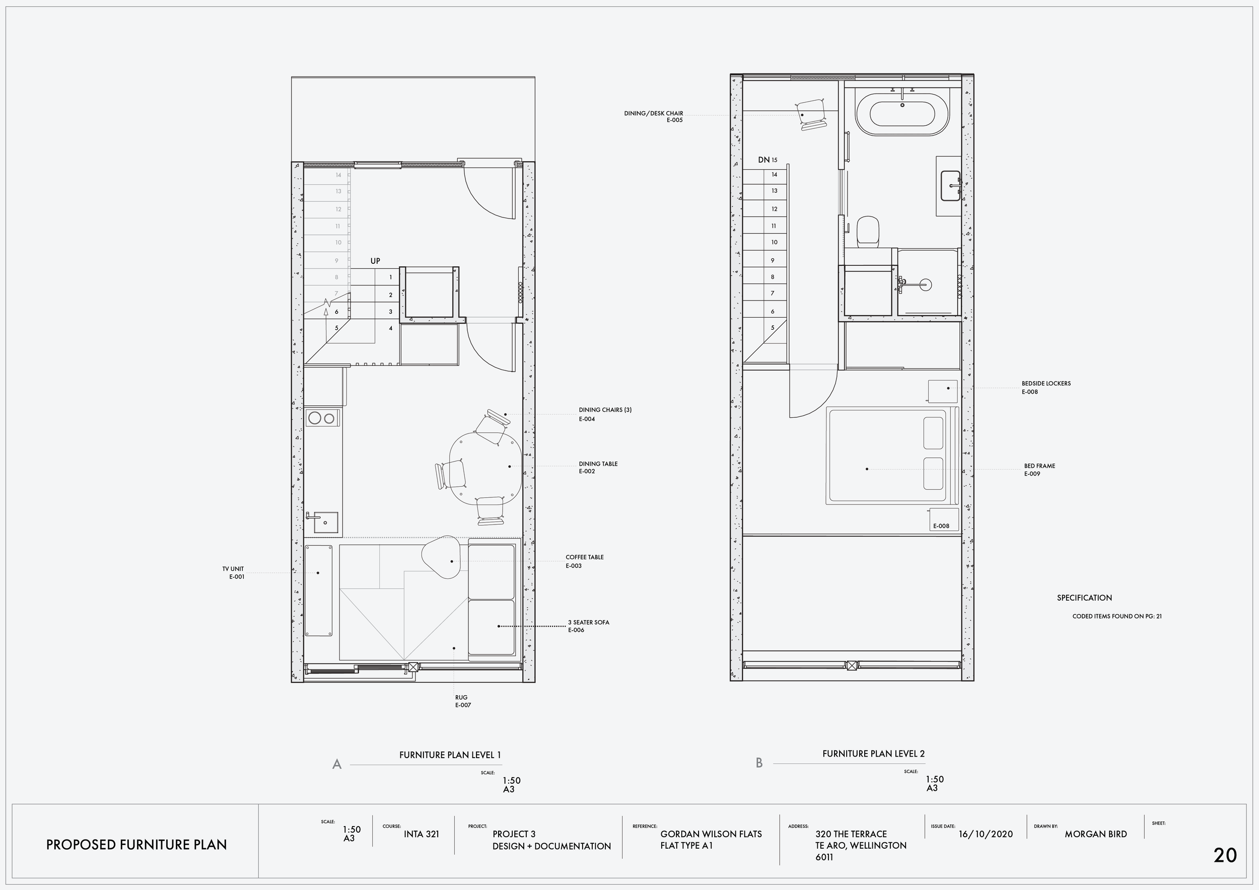
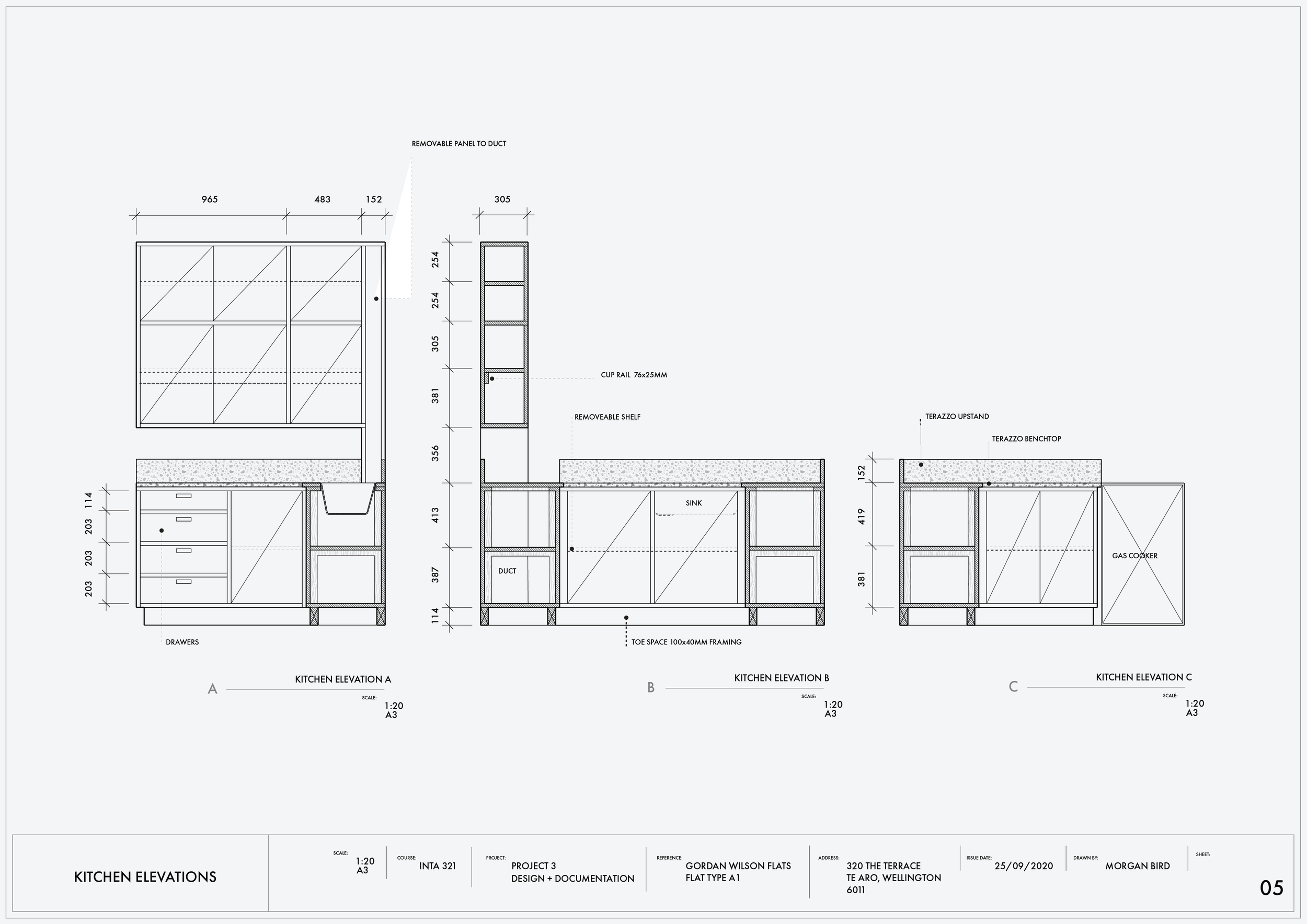
Document an existing apartment interior in the Gordon Wilson Flats, develop a design for its refurbishment and document the fit-out design in a set of working drawings and finishes schedule using Autodesk Revit.

Victoria University
INTA 321 Interior Fit-Out Technologies

Final grade A+

Previous
Previous

Hotel & Restaurant