Arlington Social Housing

2020

Aotearoa is in the midst of a housing crisis. This impacts the physical, emotional and spiritual wellbeing of communities, particularly the most vulnerable. What is needed is radical re‐thinking and experimentation around how we live and how our shelters function.

Develop a housing scheme in three stages - Predesign, Prelim and Developed/Detail, and begin to understand how each stage works holistically in developing a project proposal for resource and building consent.

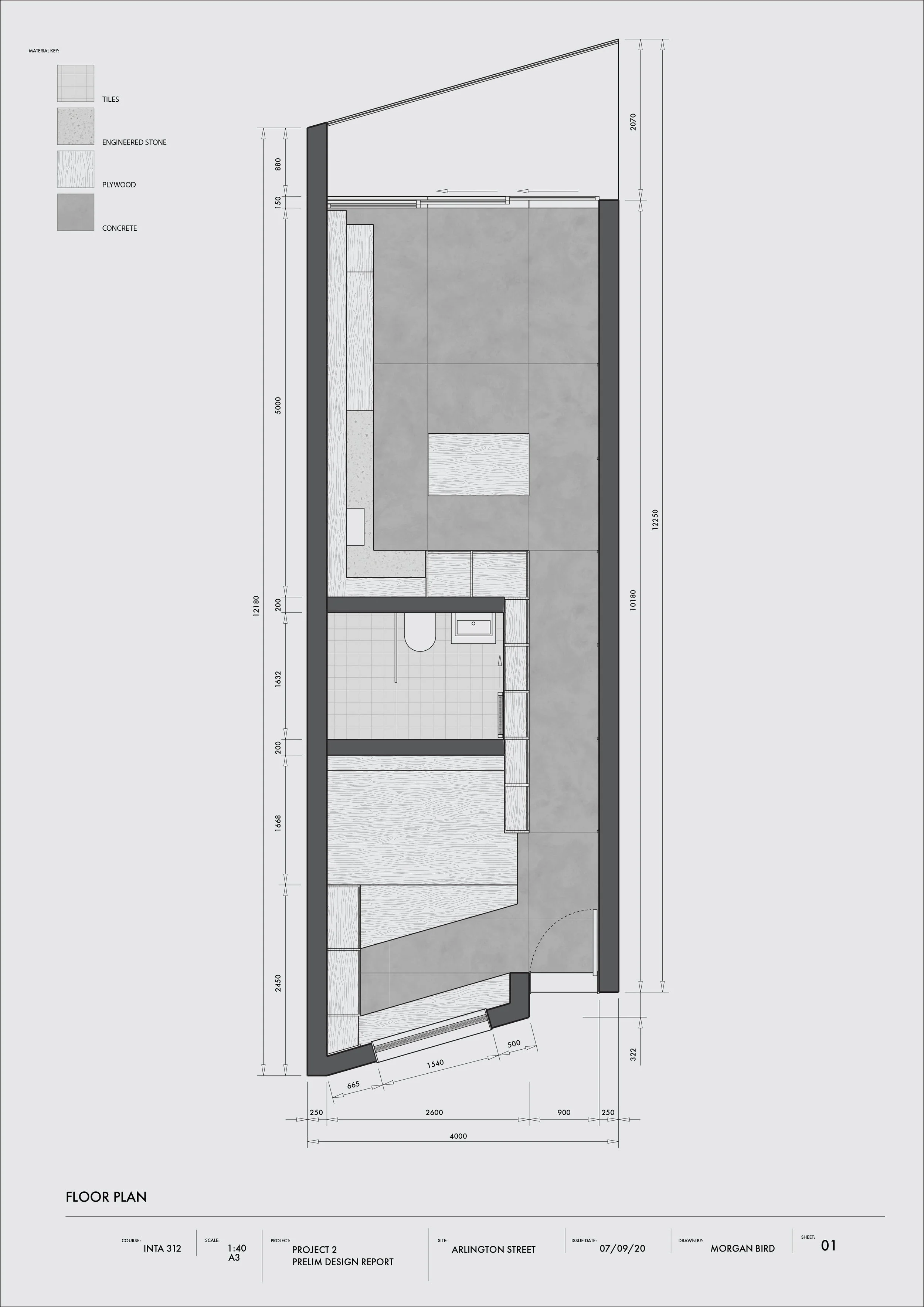
“My master plan is a series of terraced single bedroom apartments ranging from high to medium in density. The plan utilizes prefabricated construction to position a lattice of single bedroom units across the pre-existing terrain. The layout aims to promote interconnectivity through a series of bridges and pathways to create a communally accessible space helping to promote a sense of community and belonging. The units are all designed to incorporate passive heating and universal design.”

Victoria University
INTA 312 Interior Architecture Studio Capstone

Final grade A+

Next
Next

Gordan Wilson Flats